京都Guest House合庭
项目选址位于京都乌丸五条,房子本身已有100多年历史,为传统的木结构町屋,主体骨架良好,除了一些杂乱的私人加建。客户意将其改造成一个独特的高端精品民宿。原则上我们尽可能的去保留,同时也需要更新以满足现代的生活需求,自然而然的就产生了一个混血的新旧组合建筑。和一般纯住宿的民宿不同,我们还提供了小博物馆式的文化展示体验空间,所以取名合庭。
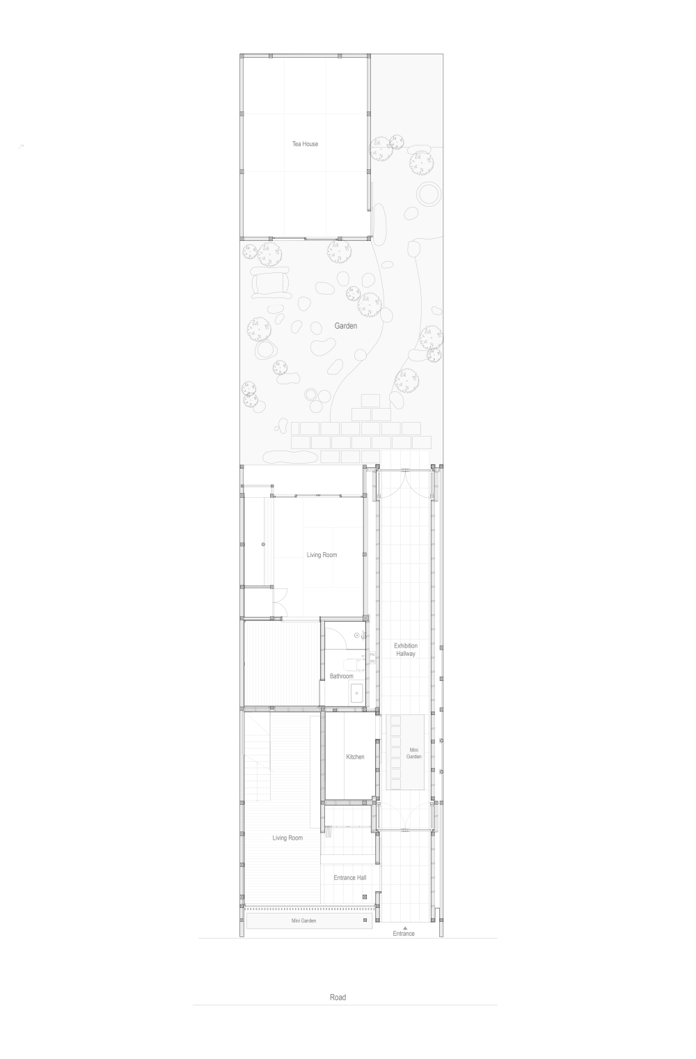
设计在正立面上插入了一个隧道般的纯粹现代空间作为主入口,向外伸出街道,向内穿过母屋直入深处的庭院,使得人们在街上路过时便能看到深处的庭院景观,这便是新对话场景介入的开始,旨在拾取表达传统京都生活文化的精髓——庭院。这个隧道除了连接民宿和茶室庭院等各空间外,同时作为展廊,展示收集淘来的各种日本老旧物件,给当地艺术展示提供一个干净的背景。
为满足新的需求我们重新梳理了母屋室内空间,在不破坏原结构的基础上,修改了楼梯的走向并做了新楼梯,因为之前的老楼梯非常拥挤陡峭,走起来并不舒适,还在一二层都加入了现代的卫浴空间,以保证体验的舒适性。当然加固结构的代价也必不可少。在利用楼梯下部空间制作储物抽屉时,我们将拆下的老房子木板材重新利用做成抽屉板,体现房子本身的历史情感。
清理庭院时从地里翻出了许多具有年代的石头和石缸,庭院景观的设计便以这些石头为中心展开,还保留了院内原有的枫树,同时结合现代和传统的造景语法 ,创造了一个看似日式又有点现代的庭院,用弹丸之地演绎出山石海。
材料的选取上我们以原木和素土肌理涂料为主,把手五金等选的做旧金属和黄铜,以材料本身真实简单的自然机理延续保持原本母屋的质朴。每个空间我们都能同时看到旧木结构和新木作家具隔断的同时存在,非常有趣,以一种看似矛盾的对立表达,让住在这的人切实感受到各个时代的痕迹交汇。


























项目名称 :京都Guest House合庭
用地面积 :185㎡
建筑面积 :120㎡
项目地点 :日本,京都
摄影师 :Toshiyuki Yano
客户 :E&K
设计周期 :09.2016 - 03.2017
施工周期 :04.2017 - 12.2017
