意大利I.T CERAMICHE瓷砖总部,东西美学的邂逅
I.T CERAMICHE一个源自意大利的瓷砖品牌,崇尚自由、个性、时尚、新潮。力图将自然舒适、艺术品位,极致轻奢的意式生活美学融入到东方语境,并将东方意蕴和意式美学进行交融叠加,使品牌散发出独特的浪漫观感和艺术气质。在功能上将一二楼作为品牌总部的产品展示空间、接待空间、及公共休闲空间,三四楼则为品牌办公空间及后勤空间。

任意旋转的立方体块
建筑外观是一座四层高的结构体,设计师从生活中喜闻乐见的“魔方”获取创意灵感,将每一层盒子交互旋转,在建筑形态上呈现出看似矛盾又相互依存的扭动形态,凸显建筑体块的力学美感,并使用质朴厚重的深色水泥砖和轻盈通透的玻璃盒子产生强烈的视觉反差,使实体盒子犹如悬浮于空中。黑与白,轻与重,虚与实,运用自由平面与自由立面的设计手法,使外观具有丰富的结构变化,黄铜金属和深灰色水磨石相互穿插,彩色有机玻璃和大理石相互并存,人工合成材质和传统自然材质相辅相成,宛若光束划破冷峻夜空,表达了品牌的轻奢调性、极致工艺和美学观点。

沉浸水下的一方天地
室内空间将旋转的“魔方”概念继续延伸,使空间形态更具自由对立特征,大堂空间天花运用水纹不锈钢材质,仿佛置身水底的观感,转动的墙面和天花通过体块搭接和穿插,赋予空间强烈的建筑体块属性。粉色奢石和水泥质感的地面相互对比,凸显各自的质感特点,空间起承转折,一步一景,让观者的视线的行走方式被空间吸引着前行,自由空间的核心不应该限制人的行为,而是自然引导人在空间中行走,穿行于水波潋滟中,诗意的传达以建筑的方式发展到一种与自然之物心灵唱和的更复杂、更精致的状态。

大面积落地玻璃窗将自然光引进空间,提高整体空间的氛围感,金属的回旋似乎源于水的漩涡,石头的锯齿可能来自木匠的榫卯,但它不是漩涡,也不是榫卯。一种特质、一种韵律,把表现的与被表现的联系起来,而这种联系又只体现为单纯的形式语言。这是一种诗意的抽象。形状不再带有任何内涵或延伸的意义,它只代表它本身,它只代表美。

通往未来的漂浮天梯
以水磨石质感的阶梯通过建筑手段营造使其漂浮于水面之上,这种看似违背自然规律的方式将引发更多联想,由石块构建成的台阶,引领观者缓步而上,犹如通往未知世界的天梯,分离的体块,体块之间的缝隙,缝隙之间的光带,让厚重的台阶变得轻盈起来,意大利建筑大师斯卡帕认为每一个形体都应该是独立而又相互关联的,由此而衍生出“分离主义”的建筑观点,这些来自建筑界的理论无疑影响到了空间设计领域。



多元向度里的分离重构
柯布的自由立面理论摆脱了结构柱对建筑立面的限制,同时也认为建筑结构不应该被掩饰起来,它们在空间里本身就具有独立美感,设计师在此空间不但保留结构的原始美感,甚至去强化这种建筑结构本身的美感,裸露的工字钢结构和钢筋网架在梁柱之间自然穿插,间架结构的组合中亦虚亦实,表达出对工业时代的建筑架构形态的赞美。让外露的建筑结构自带的美感成为空间中的装饰元素,让体块和线条在上下左右的多元向度里,拉出立体层次感。

设计师在此共享空间中置入4米高的LED旋转屏幕模块,放大自然石纹的肌理和色彩魅力,用于呈现产品本质的视觉观感。水滴形的不锈钢艺术装置慵懒地匍匐在地上,如梦游者般的沉重、缓慢、游离…..自然景观半掩于盒子里,给空间增添不少生动,设计团队把自然的事物转变为某种建筑和城市的构建元素,引人无限遐想。




一个空间中三个不同形态的柱子,似乎是在向观者逐层剥开建筑的外在包裹物,形成强烈的视觉冲击感,引人陷入哲思,真正的完美是什么?强调不同材料特征之间的碰撞,打磨抛光的水磨石、精致奢华的大理石、腐蚀生锈的工字钢金属,光滑与粗糙,冷峻与温润,用对比、类推、共生、重复、秩序等方式来构成空间。中部的柱子用金属结构、铝材、玻璃等技术结合起来构筑成了一种新的建筑结构元素和视觉元素,这种组合既是对可持续材料的探索也是对现代主义的承袭,设计不单单是一种表面装饰,更是要发掘和思考各种内在可能性带来的重构。交接是装饰之源。斯卡帕考虑的不仅是平面的交接,而是立体的、结构的交接。交接发生在不同功能、不同部件、不同材料之间,优美的交接细部设计表现出它们之间优美的关系。这种优美的关系便是清晰。



古今对话中的东西美学
拱形门既是西方也是东方的建筑语言,利用向上的拱形与向下的拱形并置,产生东西方美学的共鸣和冲撞,同时又被赋予产品的展示功能;巧妙地运用透明亚克力板这种现代材料与古老的原始的石材形态进行组合,瓷质台阶从拱形里延伸出来。这种拱形的形态来源于过去的历史建筑元素,却运用现代抽象的设计语言与最基础的建筑形态来表达,使之抽出、混合、拼接。利用历史符号来丰富建筑面貌,这是后现代主义大师罗伯特·文丘里的理论主张,这种做法丰富了现代建筑的审美性和娱乐性。

后现代主义的另一个代表人物迈克·格雷夫斯表示,他设计“象征性的建筑”这类型建筑的动机就是要表现建筑与自然、古典传统之间的关系。因此这种设计具有明确的意义:对历史主义的象征性表现。这种折衷处理是建立在现代主义设计的构造基础之上的。其灵感来源是欧洲古老的历史象征,而表现形式又是当代的,采用折衷的、戏谑的、轻松的方式,形成一种特殊的语言,联通古今与中西,引人思考,从而进行意义的传达,这也是本项目一直坚守传承的设计思想。


温润质朴的心灵触动
室内空间是建筑的延伸,挑空的阳台和落地玻璃窗为室内空间提供了必要的空间属性,抬高的阳台,园林氛围的书房,宁静自然的卧室,这里是一方享受自然阳光的天地。阳台上枫树,阳光透过金黄的叶子撒进室内,犹如在讲述着一个秋天的浪漫童话,更似乎是朱丽叶的窗台,窗台的绿植和户外的自然景观形成一个很美的过渡空间,设计师刻意营造出一种转角一霎那遇见自然的惊喜,试图重启一种人与建筑融入自然事物的“齐物”建筑观。光影在树叶的间隙中流动,在室内留下自己的叙事语言。






用虚拟手段打造的苏州园林白墙和山影打破了这静穆,使封闭空间变得通透和悠然自得,塑造出一种羽毛般轻盈的空间质感。




回归自然的素雅生活
空间的本质是回归自然,混凝土质感的产品在光线的渲染下更显宁静本色,质朴的空间氛围使观者的内心抛去浮躁,回归宁静。延续了一楼的设计元素,上下层互相呼应。用最自在的方式,诠释最纯净的白色。






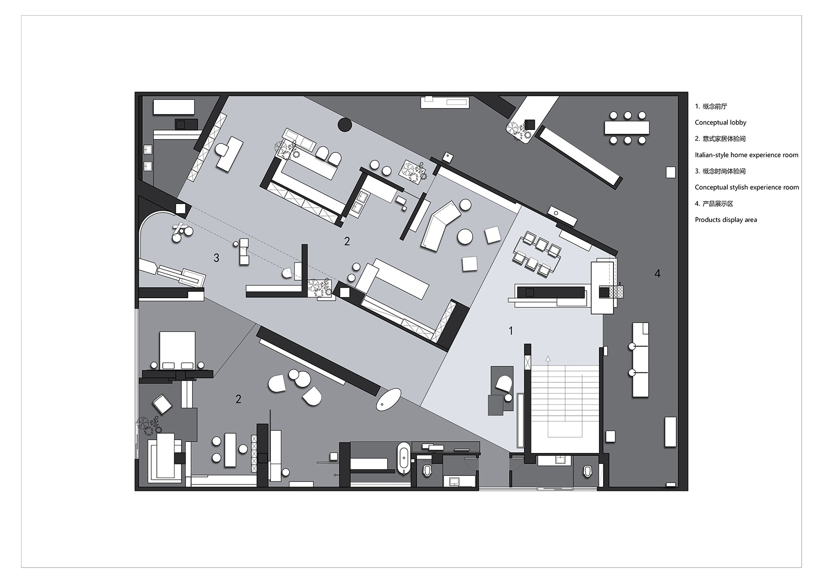
▼ 一层平面图

▼ 二层平面图

▼ 场景解剖图



项目名称:意大利I.T CERAMICHE总部展厅
项目面积:1800平方米
项目地址:佛山市华夏陶瓷博览城
设计单位:佛山市拓维室内设计有限公司
设计主创:汪志科&李小水
设计团队:卢仲文、李念华、邱文峰、兰菁薇、吕杰超、冼柳青、黄健贺、赖玉琴等
软装设计:杨仕威
空间摄影:欧阳云
文案:江晓丽
业主单位:佛山市铠恩斯陶瓷有限公司
设计时间:2019年10月
竣工时间:2020年05月
好设计网 www.haoooo.cn 欢迎投稿:infohaoooo@163.com
好设计网 www.haoooo.cn欢迎投稿:infohaoooo@163.com
