铁花咖啡工厂店,营造复古工业氛围
项目位于浙江乐清市下山头村铁定溜溜乐园。


▲ 功能吧台

咖啡烘焙区域,在这里可以见证一粒咖啡豆到一杯咖啡的全过程。
一颗咖啡生豆到一杯醇香咖啡的诞生故事。

▲ 座位区,近距离观察烘豆过程

▲ 悬挂式壁炉,坐在柔软的皮质沙发上,温暖了冬日
咖啡体验已不局限于手握一杯成品咖啡,而铁花咖啡厅更像是一家咖啡工厂,在这里,除了品尝咖啡,消费者可以零距离接触和了解咖啡的烘焙、生产和制作过程,感受互动式全感官的咖啡体验。

▲ 金属网格隔断

▲ 金属圆管
咖啡豆的香气吸引你走进这个咖啡复合空间。整个空间划分了操作区、休闲区、设备区和展陈区。长达数米的操作台配备了多种咖啡机满足各类咖啡的制作需求。捧着咖啡,消费者可根据自己的喜好选择多种休闲方式,窝在舒适的靠墙沙发与客交谈,或坐在靠窗吧台观赏窗外花坡。空间的中心放置着进口的probat烘焙机及生豆仓,客人可以隔着安全围挡观看烘焙师操作从生豆到烘焙加工的整条生产线。而展陈区分布在动线中,消费者可以随意选购周边产品,给消费者传达品牌理念及生活方式。

弧形金属网格隔断后是一张穿过绿色墙面的长桌,看着窗外的风景,手捧一杯拿铁,拿起一本读到一半的书
空间中用了大量的金属,圆管在顶上交织穿梭,格栅穿插其中,连白色的地面都点缀着金属马赛克,暖黄的灯光照射下,泛着光泽,而墨绿色的墙面涂料、仿古砖、木作、暖色做旧皮革则中和了金属带来的冷感,点缀在空间中的黑板画、从各地淘来的旧皮箱、打字机等老物件,无不营造着一种复古工业氛围。





▲ 空间细部
阳光穿过落地窗,品着咖啡,听着轻音乐,看向窗外的风景,一站式咖啡体验让消费者在午后感受着惬意,这是一种生活方式,也是一种心境。

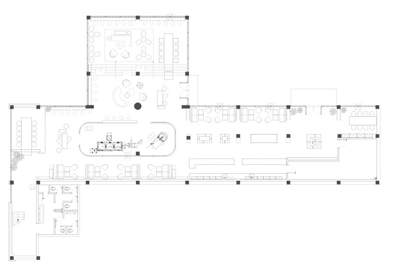
▲ 平面图
项目名称:铁花咖啡工厂店
建筑面积:600㎡
项目地址:温州乐清下山头村
设计单位:杭州慢珊瑚文旅规划设计有限公司
主创团队:慢珊瑚设计
合作单位:春晖装饰
空间摄影:瀚默视觉 | 叶松
项目客户:方玉友、杨丙军、蒋正剑 | 乐清慢方适文化旅游有限公司
项目设年份:2019.12-2020.5
好设计网 www.haoooo.cn 欢迎投稿:infohaoooo@163.com
好设计网 www.haoooo.cn欢迎投稿:infohaoooo@163.com
