墨西哥Risch住宅,低调而实用
Risch住宅位于一个进出受管制的住宅区内的角落地段。这是一个五口之家的房子。这个房子在尊重住宅小区准则的同时,整合了未来居民的大部分期望。同时,我们提出了一个控制建筑成本和时间的策略。

为了避免温和的环境和保护其免受雨水和阳光的影响,房子是对外是封闭的,但决定将其开放给地块内部,从而为所有区域提供自然光和照明。


由于其简单的结构,该房屋允许通过贯穿地块宽边的滑动板将花园与起居/餐厅融为一体,这样做提供了空间上的连续性,从而消除了房屋与花园之间的界限。


紧凑的家居理念,整合了简单的材料、高效的建造技术和简便的维护能力,造就了一个集实用、低调、朴实为一体的建筑对象。










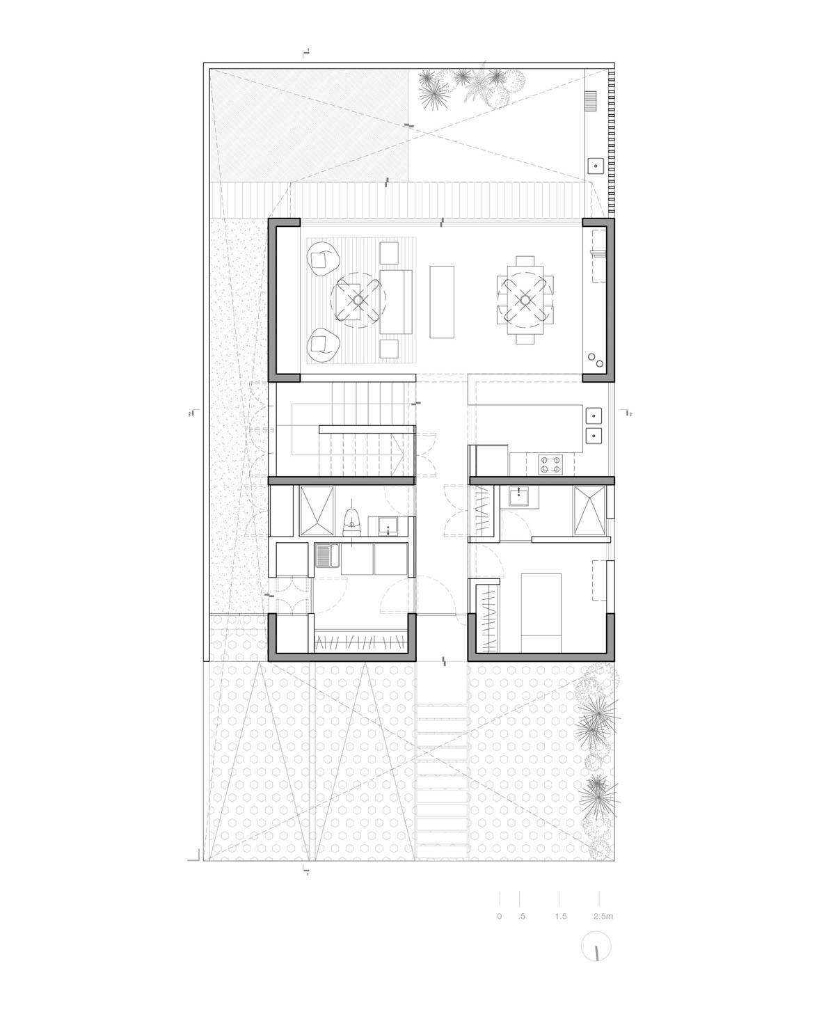
▲ 一层平面图

▲ 二层平面图

▲ 三层平面图

▲ 立面图-1

▲ 立面图-2

▲ 立面图-3

▲ 剖面图-1

▲ 剖面图-2

▲ 剖面图-3
项目名称:
项目类型:独立住宅
项目面积:180 m²
项目地点:CANCÚN,墨西哥
设计单位:Kiltro Polaris Arquitectura
厂家:AutoDesk, BTicino, Cemex, Corev, Grupo Tenerife, RICASA, RICCETTI
Arquitectos A Cargo:Victor Ebergenyi Kelly
设计团队:Noe Urquijo, Valeria Villanueva, Yissel Alanis, Jimena Robles, Daniel Schondube
结构设计:PORDIMEX. Ing. Alfredo de la Cruz
空间摄影:Cesar Bejar, Santiago Hayser
项目年份:2020
好设计网 www.haoooo.cn 欢迎投稿:infohaoooo@163.com
好设计网 www.haoooo.cn欢迎投稿:infohaoooo@163.com
