北京瑜舍公社
北京瑜舍是隈研吾在北京的标志性建筑设计作品。近日,Kokaistudios为瑜舍设计地下一层的室内活动空间——公社Commune,在充分考虑内在灵活性的同时更融合了中国传统建筑元素。该项目包含主空间及走廊区域,巧妙隐藏的滑动门设计让这个地下空间具备更多拓展的可能性。作为可适用于各种活动的高融合度场景空间,庭院的概念贯穿全局,很好延续酒店原有设计元素的同时又与下沉花园紧密相连。


▲ 主厅入口
Kokaistudios对北京瑜舍的底层活动空间重新设计,形成了灵活、多功能的活动空间——公社。为保持建筑原有四合院式的传统设计语言,设计团队从酒店的下沉花园获得灵感,扩展既定主题,创造了完整而独特空间。设计安置了特色的折叠门和玻璃隔墙,让这个756平方米的主空间和走廊区域可以承办各种类型和规模的活动,为这家久负盛名的酒店开辟了新的可能性。


▲ 主厅
瑜舍邀请Kokaistudios将其原有的底层餐厅区和走廊改造成公社,为私人宴会和艺术展览提供多功能活动空间。为实现各种功能需求的最大化,设计在主多功能厅中间建立滑动隔断系统,通过滑动门的开合以完成该功能空间划分的需求,以适用于不同使用需求的客户。设计除了满足功能需求以外,其空间拓展性也极强,比如雕塑天花板带有隐藏的悬挂系统,它可以根据客户的要求随时进行调整和校准高度。Kokaistudios改造的功能空间直接衔接由如恩设计的活动场地Studio,并可通往酒店下沉庭院、中央电梯至大堂以及三里屯太古里购物中心,在空间中建立了新的功能层次,并与酒店的主要设计元素与场景产生共鸣。

▲ 小厅
设计将空间想象成一个庭间院落,可经由酒店的下沉花园进入,主空间以连贯的水磨石铺地在视觉上与周围环境连接。建筑北侧原有的玻璃立面提供了充足的采光,天花造型以悬挂的半开放天花木板构成,使空间进一步向上延伸,拓展了空间的视觉高度与亮度。这个装置由2355块纵横交错的木片组成,适度地分块组合,将灯具路轨、喷淋、音响等系统很好地隐藏在造型上缘,也可以隐藏悬挂摄影作品、海报和其他活动物料的展示构件。可折叠的移动隔断系统创造了一面可打开的隔墙,使改造后的公社空间可以被分成大小两个空间。另外还有另一组折叠门安装在多功能厅的尽端,其背后是通高的LED屏幕,可以根据活动的需要将屏幕显示或隐藏起来。

▲ 走道空间

▲ 阶梯展示细节
多功能的走廊分布在公社空间的东、南两侧。主功能厅前侧放置着简约、素净的木质方桌接待台;而在其他空间,散落点缀着简单的阶梯式座位,该区域是主空间的入口,可以用于接待、商务候客、摆放临时装置或举办小型展览。设计稍微扩大了空间的尺度,采用温暖近人的哑光黄铜不锈钢营造入口的框架,让入口区域成为整个公社空间的标识。

▲ 小厅
为地下空间引入充裕的自然光是优先思考的要点,因此设计采用大面积玻璃隔断将走廊区域与主空间做分隔。蚀刻格子的设计与酒店引人注目的立面相呼应,为保护隐私采用半透明材质,在夜晚也呈现出迷人的光芒。玻璃的使用是Kokaistudios在该项目中最主要的建筑设计手法之一:用玻璃材质取代了之前的封闭墙体,在酒店外廊南侧就可以俯瞰下方的泳池空间。

▲ 洗手间入口
卫生间则进一步延续了传统中国园林的设计哲学,以抽象形式表现盆景植物的美感。温暖的黄铜色调晕染整个宽敞的空间,盆栽式的面盆置于镜前的地柜之上,增添了几分趣味性。


▲ 下沉花园
Kokaistudios在客观中立思考下翻新设计的公社极具灵活性及功能性,也为北京瑜舍的公社Commune功能空间带来了更多新的可能性。与此同时,中式花园的设计概念也向该原本业态的设计理念致敬。公社是在当代语境下对悠久传统的当代诠释,使其更敏锐、适应性更强,是对北京地标建筑的实用性升级。

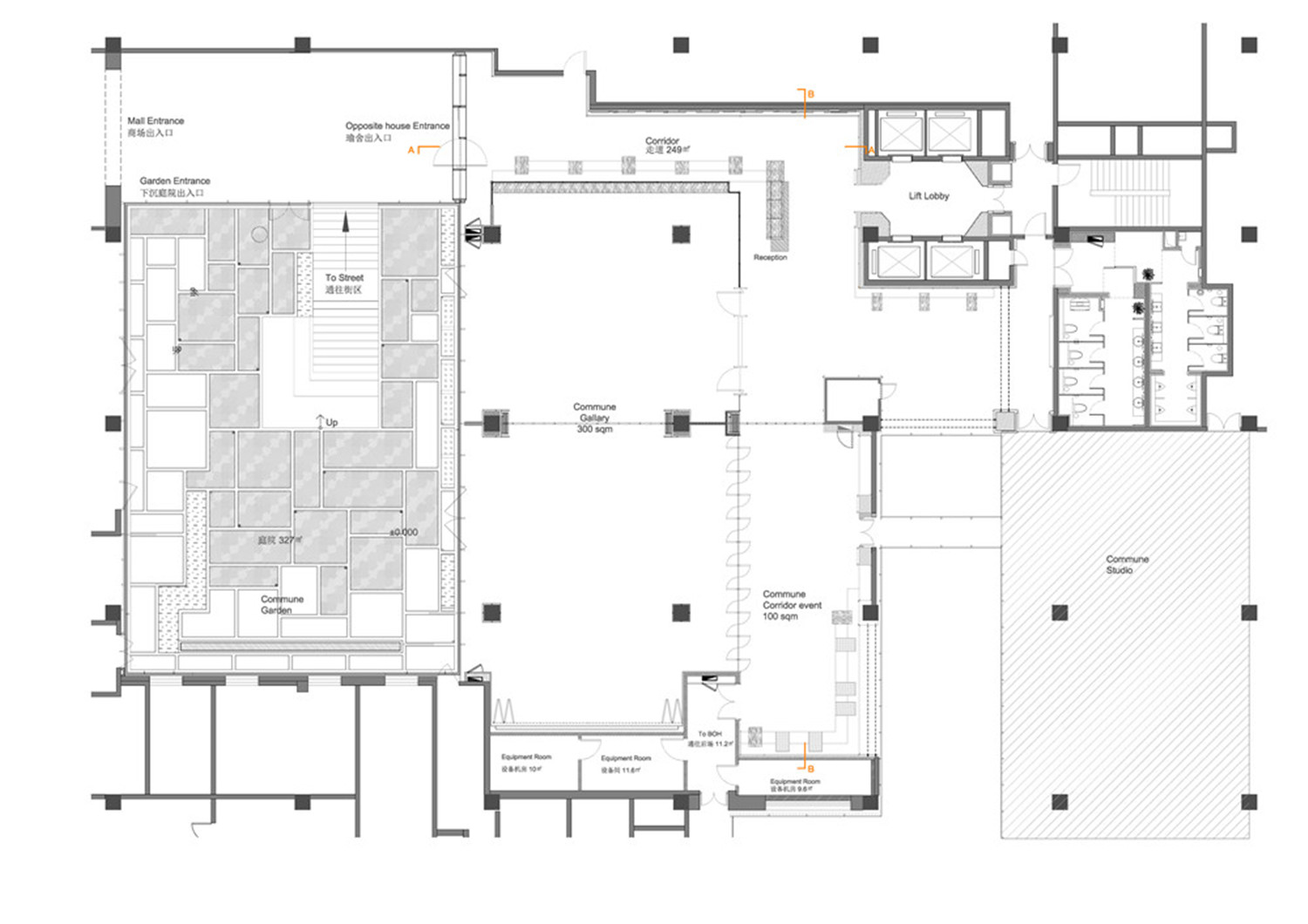
▲ 平面图

▲ 剖面图

▲ 轴测空间组合

▲ 轴测设计分析

▲ 天花模块细节

▲ 从商场到公社入口

▲ 下沉花园

▲ 洗手间轴测图
项目名称:北京瑜舍公社
室内面积:756平方米
花园面积:327平方米
项目地点:中国,北京
室内设计:Kokaistudios
首席设计师:Andrea Destefanis、 Filippo Gabbiani
项目经理:常青、孙文娟、张雅楠
设计团队:方玥、蒋斌、黄贤樱
空间摄影:Dirk Weiblen
撰文:Frances Arnold
项目客户:北京瑜舍
竣工时间:2020年7月
好设计网 www.haoooo.cn 欢迎投稿:infohaoooo@163.com
好设计网 www.haoooo.cn欢迎投稿:infohaoooo@163.com
