武汉“禾流”啤酒博物馆,彰显“酿酒机械”之魅力
时间之流浸润并模糊了榖物的原相,形色香在压力变化中揉杂温度、空气和水滴酿出甘醇风味。

▲ 锥形曲面,共享记忆的建筑地景
酿造啤酒是一册自然结合工业文明的书卷,谷物经由一道道形变历程从金黄化作杯中佳酿,这是湖北雪花啤酒厂运作数十年的任务,塔型厂房也成居民心中的城市地标。如今计划于原基地建构一座现代的啤酒博物馆,负责空间的水相设计希望昔日酿酒机械提炼为建筑语汇,营造别于传统博物馆的参访行为,并连结地景新旧意涵与共同记忆。
▼ 剖面图

突破整齐而静态的线性展列,我们模拟并放大某些酿酒器材的尺度至建筑规格,透过隐约的既视印象,观者感受自身缩小如原料分子流动其中,过去看展习惯立于外部的旁观颠覆为进入其中的参与。例如展览起点高耸慑人的筒状立面,是简化再格放啤酒储存槽的形体、切剖成巨型有机轮廓,以此对比出人的渺小,穿越其间如液体流入庞大容器,再迈入另一处开阔、明亮如实验室的场域。又如贯穿一二楼梯间的巨幅墙面,利用看似一体成型的锈铁质地遮覆动线两侧,创造窄化甬道的戏剧效果。建筑造型让压抑与释放轮番上阵,自然强化观者在展览文字外的体验记忆。
▼ 入口

▼ 筒仓

▼ 仰视


▼ 筒仓天顶

▼ 连桥

▼ 一层入口

▼ 二层空间


▼ 贯穿一二层楼梯间的巨幅墙面

▼ 楼梯&细节

零件之花,机械的理性魅力
我们也拆解拣选啤酒原料、煮沸蒸发等流程所需的仪器、品饮滋味等环节,经由参观行为串连五感的立体知识。例如起点树立各产区啤酒花的气味仪,描绘大地芬芳的小麦田,酿造啤酒的复杂仪器管路都在路径上引人体验与记忆。旧建筑熟悉的储酒、发酵槽和烟囱筒状轮廓、蒸气烟雾的朦胧、金属光泽与麦芽柔和的大地色,亦为博物馆选材依循的脉络。
▼ 大堂


面对繁复庞杂的淬酿程序和器皿,我们以设计转其行并借其义,在重要的视觉端点化为能独立欣赏的元件,这些寓意开放的艺术品仍记述着制成啤酒的爽口公式。负载经验、知识与科学的它们重新编组为崭新文本,放大机械理性文明的魅力融入新建筑架构,并延续旧厂址身处的工业时代风华,作为新造街廓的生活起始点。
▼ 装置

以啤酒试饮吧台为中心环绕的圆形餐厅,像一座集会交流的城市广场,模拟厂房管线的金属线条与圆弧灯管盘旋其上,映照着温暖敦厚的软木塞天花板,想像着佳酿的芬芳在悠长的时光里缓缓渗入隙孔,于不经意的嗅闻唤醒心底某时某刻。在同样理性的线条结构、扣连麦田的色调里,我们借材料的本质改变空间叙事氛围,观者可在此觅得一席沉淀的位置。
▼ 圆形餐厅


▼ 座位细节

造一只器皿,让历史一饮而尽
啤酒博物馆是时间的载体,如同佳酿的容器,我们试图淡化立面存在感以保留内容的独特性。室内多以简洁线条和立面构成,尽可能采用色调具一致性的材质,形塑完整连贯但沉静知性的抽象氛围,仅利用光线明暗层次来深化结构塑造的空间缩放感受,将观者的专注力保留给馆内展示物件,以参访行为串起建筑与机械、现代与历史形貌变化。
以建筑为器,这座新造的皿承装着啤酒厂跨世纪的年岁、经验与知识,运用当代美学语汇沁人心脾。
▼ 入口空间细节&卫生间

▼ 庭院装置

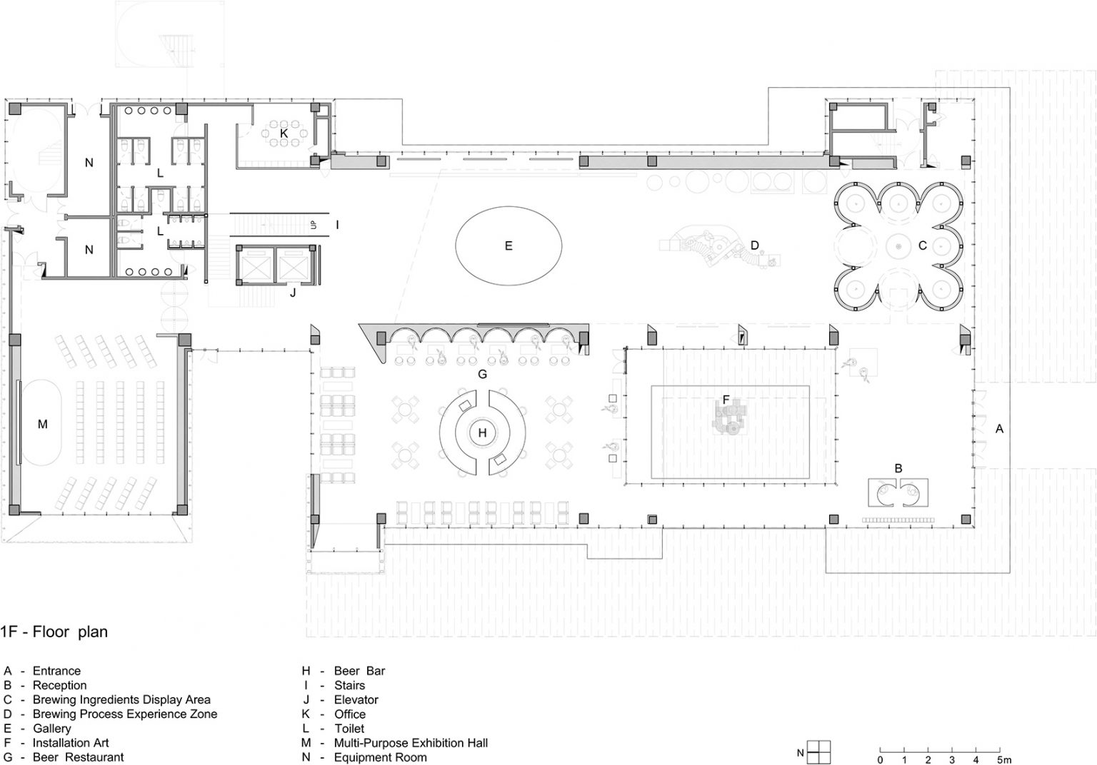
▼ 一层平面图

▼ 二层平面图

项目名称:禾流啤酒博物馆
项目类型:商业空间
项目面积:2250平方米
项目地址:湖北省武汉市东西湖区张柏路与金北一路交汇处向西500米
设计公司:水相设计
设计团队:李智翔、葛祝纬、林其纬、林亭妤、陈宥儒
软装设计:夏谷暑雨商业策划有限公司
主要材料:米色大理石、象牙白莱姆石、手工漆、耐候钢、铝合金板、紫铜板、胡桃木实木皮
空间摄影:亮点影像 Highlite Images
项目客户:华润置地
好设计网 www.haoooo.cn 欢迎投稿:infohaoooo@163.com
好设计网 www.haoooo.cn欢迎投稿:infohaoooo@163.com
