上海 SLAB TOWN 咖啡厅,揉合室外街景于一体
我们的一位咖啡师朋友将自己的第一家咖啡馆选址在上海前法租界核心区的一栋老洋房内。室内面积虽然只有20多平米,却有着整洁的朝东临街立面,和不可多得的朝南院落植被。
▼ 街景

▼ 咖啡店入口

老洋房内多家合用的历史造成了通路迂回的露台现状、脆弱的邻里边界平衡,以及野生阔落的内院景观。与精致的繁华商业一栏之隔,疏离又原始的内院在大都市中令人有些着迷 : 我们的第一感观即是希望将这一体两面的室外意象揉合到室内的布局中去。
▼ 空间轴测图

于是在座位和通往露台的踏步之间,我们树立了正对街道的镜面,与划出室外边界的玻璃隔断相交,从而形成联通室内、街景、露台的视觉结构,三者互为嵌套(mise en abyme)。
▼ 室内外的分界

▼ 咖啡吧台

▼ 吧台细部

▼ 吧台与就餐区

我们用两种截然不同的材料围起了与门齐高的墙裙,以室内中线为分界:反射感明显的波纹铝板被排列在易受光的墙面;再利用同种铝板倒模压制负型纹理的浅绿色砂浆,贴附在逆光墙面,包裹住悬挑的混凝土座位。两种墙面处理方式,模数节奏统一却质感反差强烈,这种修辞上的对仗,暗喻着室内外的照应关系,贯穿至项目的始末。
▼ 街角处的围合墙体

▼ 老洋房原始落地窗与新建露台隔断的并立对仗

▼ 正对街道的镜面

▼ 镜中展现的院落空间

▼ 可自由关闭与打开的隔断门

▼ 从室外看院落

▼ 细部

波纹铝板将自然光与壁灯暖光揉合后,将反射晕染在整个室内空间中。同种铝板倒模压制负型纹理的浅绿色砂浆,与波纹铝板并置,分隔操作区与客座区。
▼ 夜景

▼ 波纹铝板细部

▼ 地面Logo

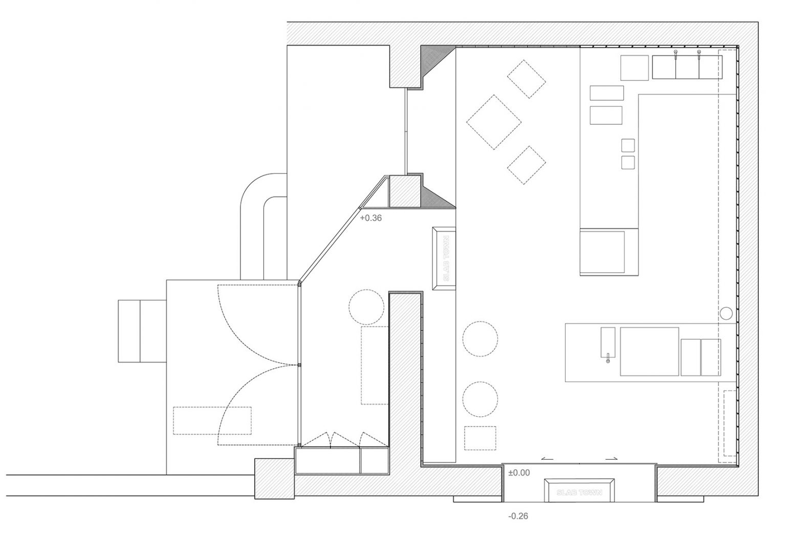
▼ 平面图

项目名称:SLAB TOWN咖啡厅
项目类型:咖啡厅
项目面积:30平方米
项目地址:上海静安区富民路210弄1号
设计公司:CASE PAVILION 案亭
设计团队:严丹捷、杨振宇
项目客户:SLAB TOWN咖啡
主要材料:波纹铝板、水泥砂浆、吸音棉、瓷砖、不锈钢、夹丝玻璃
空间摄影:Alessandro WANG
好设计网 www.haoooo.cn 欢迎投稿:infohaoooo@163.com
好设计网 www.haoooo.cn欢迎投稿:infohaoooo@163.com
