北京“焘”精品日料餐厅
我一直想创造一个“不典型的”的空间。在商业类项目中,根据委托的业态,经常被要求设计“典型的”空间。这种重视风格的设计,具有快速让人联想到那家店的业态的符号作用,但是由于符号,我们感受到的想象力也受到了很大的限制。因此,这次尽量排除符号的要素,依靠质感和空间来创造一个抽象的空间。





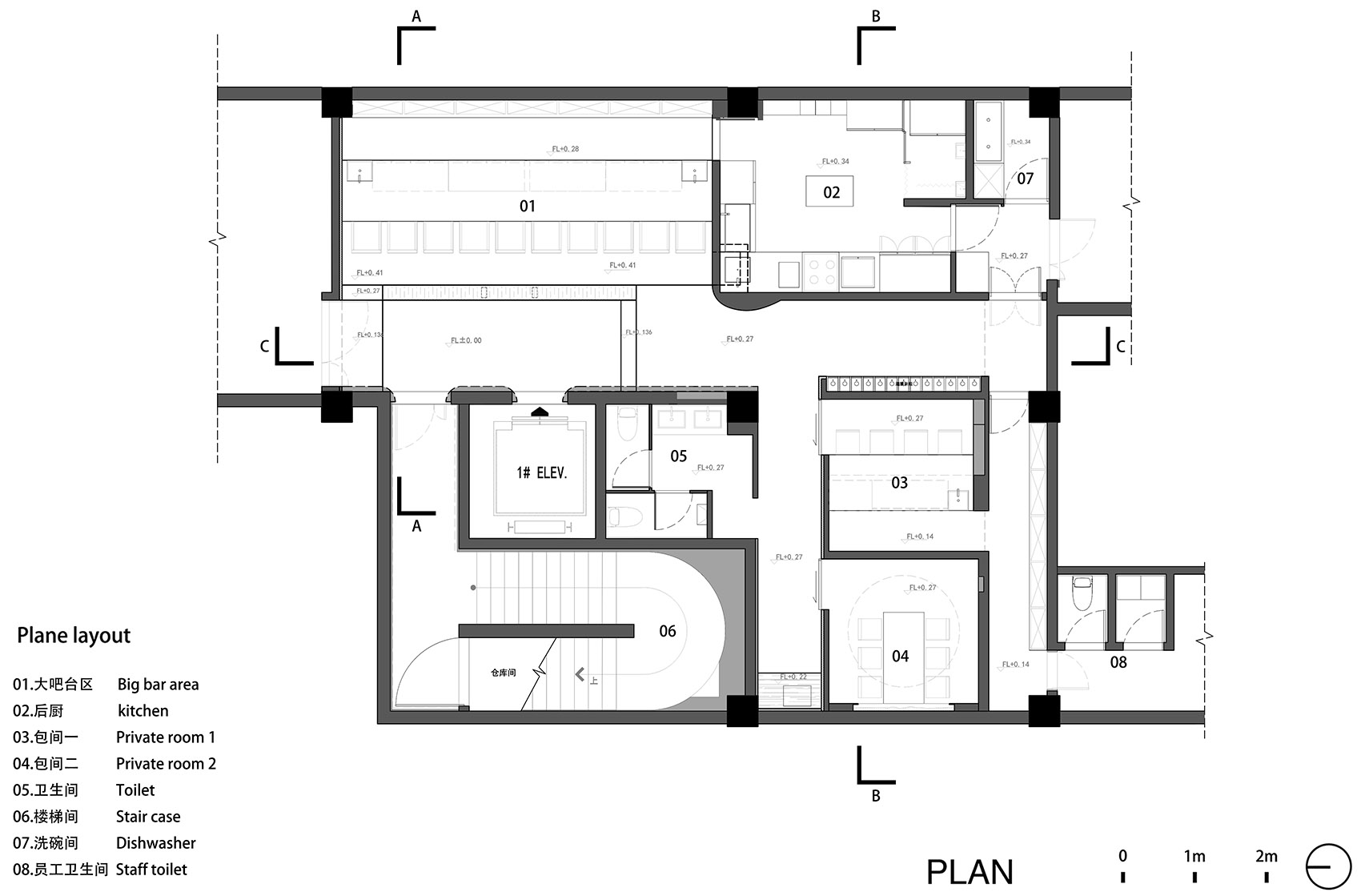
业主的要求是整体暗色调的空间,除此之外,我们尝试利用原建筑非常高的层高来进行设计。从电梯下来后,会出现一个巨大的弧形顶吊下来。入口空间被压缩,之后的空间就会更加伴随着开放感出现。在尽头的墙壁上拼贴非常原始感的石头,形成了与抽象造型的对比。为了使立体性感觉更强,表面涂上了大颗粒的喷漆,用吧台上方粗犷的原木照明模糊地照亮。单间部分也只通过立体操作设计,吧台单间是堆积成直方体的形状,桌子单间是像万神殿一样的穹顶天花上倾泻着光线的设计。卫生间表皮为微水泥,做成了极简主义。








现代社会因为大家过于轻易地追求风格,不知不觉就陷入了“应该这样”的共同幻想中,陷入了束缚。大教堂里的中餐馆,寺庙里的高级法式餐厅,山洞里的寿司店,什么都可以。设计是更自由。




▼ 平面图

▼ 剖面图


项目名称:“焘”精品日料餐厅
项目类型:餐饮空间
项目面积:190平方米
项目地址:北京市朝阳区亮马港湾大厦北楼地下一层001室
设计公司:堤由匡建筑设计工作室
设计团队:堤由匡、明达、肖阳、洪秀秀
机电设计:北京东洲际技术咨询有限公司(石川星明、竹林克宣、山崎隆司)
施工单位:北京森洋远航建筑装饰有限公司
主要材料:木饰面、大理石、文化石、肌理漆
品牌策划:北京鸣意品牌设计有限公司
空间摄影:锐景撮影
好设计网 www.haoooo.cn 欢迎投稿:infohaoooo@163.com
好设计网 www.haoooo.cn欢迎投稿:infohaoooo@163.com
