Huntly作品 ,Penny Drop墨尔本,诗意咖啡厅

Huntly / 墨尔本
2016-04-07

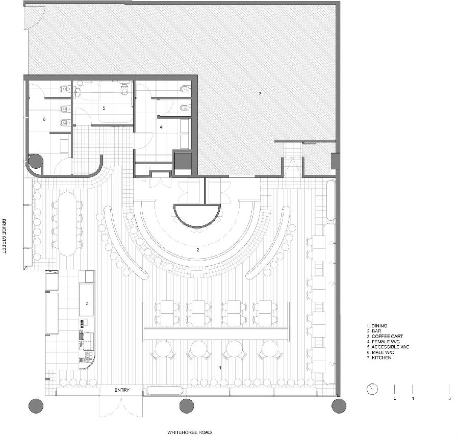
坐在新的澳大利亚税务局大楼下面,“竹Drop滴”将杯子 从上面的口袋里诗意地落下来。Huntly将装饰艺术的灯具和纹理表面被引入到一个大型商业外壳中,创造出一个俏皮而优雅的咖啡馆餐厅。


旧世界的材料 - 深色木材贴面,Dalmation色花岗岩和黄金装饰 - 混合在圆形形状的扇子中 - 灯具,木材房间隔板,大弯曲的酒吧和签名的黄铜便士吊坠,角度为乐趣。









好设计网  www.haoooo.cn      欢迎投稿:infohaoooo@163.com

好设计网  www.haoooo.cn
欢迎投稿:infohaoooo@163.com