The Commons餐厅及酒吧,独特的工业力量感
Studio Modijefsky将位于马斯特里赫特的Sphinx工厂改造成了现代化的餐厅和酒吧,以便为旁边的学子酒店提供服务。The Commons位于这座历史建筑综合体的新建部分,供包含3个楼层。其内部空间设计得大胆且充满活力,使场地与旧工厂内部的生产历史同时得到了凸显。
▼ 餐厅外观

餐厅所在的Eiffel大楼曾经是Sphinx公司的总部。该建筑于1929年以3个阶段建成,其长度为183米,因而也被称为“横躺的摩天大楼”。目前这座建筑已被重建为一个现代而充满活力的城市区域。Eiffel大楼富有工业感的砌砖立面和钢制的正方形窗户使其成为了城市中最具标志性的建筑之一。作为新建部分的The Commons餐厅位于建筑的东北角,装饰着餐厅logo的5米高的落地窗显得十分引人注目。

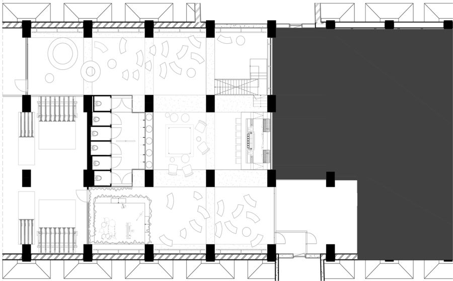
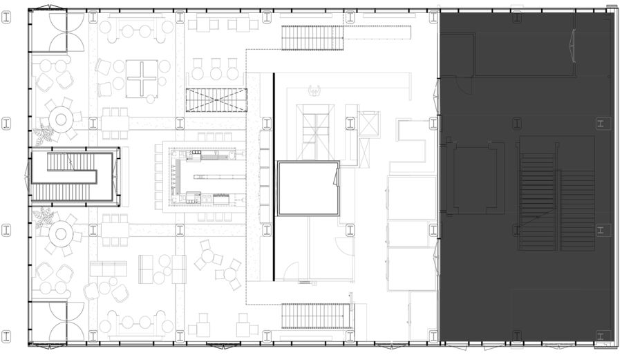
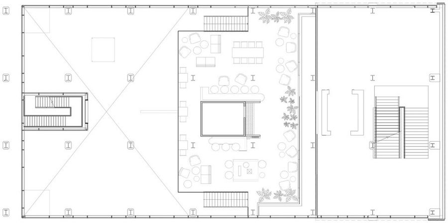
▼ 首层空间概览


▼ 用餐区


▼ 吧台

另外两个楼层也延续了这一工业主题。位于厨房上方的是明亮而舒适的夹层空间,其中摆满了定制的桌子和酒会座椅。地下室通过深色的钢制楼梯与首层相连,可用于举办音乐会、诗歌之夜和读书会等活动。



▼ 定制钢吊灯和大型的钢制门廊为餐厅带来原始的工业气息

餐厅同时被用作酒店的早餐区以及全天候的酒吧和用餐地点。光线充足的空间和工业化的围墙使餐厅很好地适应了这两种功能。位于餐厅中央的是由两个对称楼梯围合的吧台。其设计和饰面参考了建筑的原始用料。地下层置入了相同的钢柱和混凝土结构。形成一个具有私密感的鸡尾酒吧。从钢制护栏到桌子,从定制钢吊灯到大型的钢制门廊,整个餐厅充满了来自Eiffel大楼的原始工业气息。
▼ 悬挂在金属轨道上的皮革沙发形成一个概念性的“电梯”


▼ 明亮而舒适的夹层空间


餐厅的所有楼层通过一个概念性的电梯相连,那就是悬挂在金属轨道上的、有着丰富色彩和造型的皮革沙发。这一设计呼应了“横躺的摩天大楼”的主题,并鼓励使用者通过不同的摆放形式来更加自由地使用餐厅。这些“电梯”中最为抽象的一个是位于地下室的“电梯音乐舞台”,其顶部设有镜面与照明,并可以通过银色的窗帘随时打开或关闭,形成一个小型的私人舞池。

▼ 定制家具细部

室内的定制家具和精致的配色方案受到了陶瓷生产过程的启发:地下室空间中的蓝色、灰色、粉红色和黄色涂料呼应了生产工艺的开端,利用水和黏土塑造出类似于陶器模具的体量。首层空间则保持了釉面般的清亮质地。夹层使用了精烧陶器中常用的鲜艳色彩。定制的圆桌和旋转餐盘也延续了陶器的主题,选用了陶工旋盘的独特形状。地下室中引用了陶器的烘烤过程,以深色瓷砖覆盖的浴室模仿了烧炉的质感,上方的圆柱形灯具则如同熊熊燃烧的火焰。


▼ 地下室可用于举办音乐会、诗歌之夜和读书会等活动

▼ 室内的定制家具和精致的配色方案受到了陶瓷生产过程的启发


首层和夹层的地板饰面强调了既有柱网的轮廓。定制的轨道照明则将原有的天花板钢梁凸显出来。地下室和楼梯使用了一种全新的砖面图案,呼应了原本位于场地中的高炉。陶器模具的形状以及用于生产陶器的工具被再次利用,成为造型独特的工业吊灯,并将室内空间划分为不同的区域。坚硬的几何形状与柔软黏土塑造出的形体共同构成了大胆而和谐的内部空间。

在保持工厂既有历史特征的同时,Studio Modijefsky将这座建筑改造为一个富有现代气息的活跃空间。

▼ “电梯音乐舞台”



▼ 平面图



The Commons餐厅将带来大量体验美食的机会,并为大小型宴会和聚会提供理想的场地。清新而明快的室内空间充满了有趣的物件,成为Sphinx综合中的一个令人兴奋的新区域,而其过去的历史也将持续得到彰显。
好设计网 www.haoooo.cn 欢迎投稿:infohaoooo@163.com
好设计网 www.haoooo.cn欢迎投稿:infohaoooo@163.com
