加油站改造成怀旧电影院,别有风味

ASSEMBLE / 英国
2015-12-23

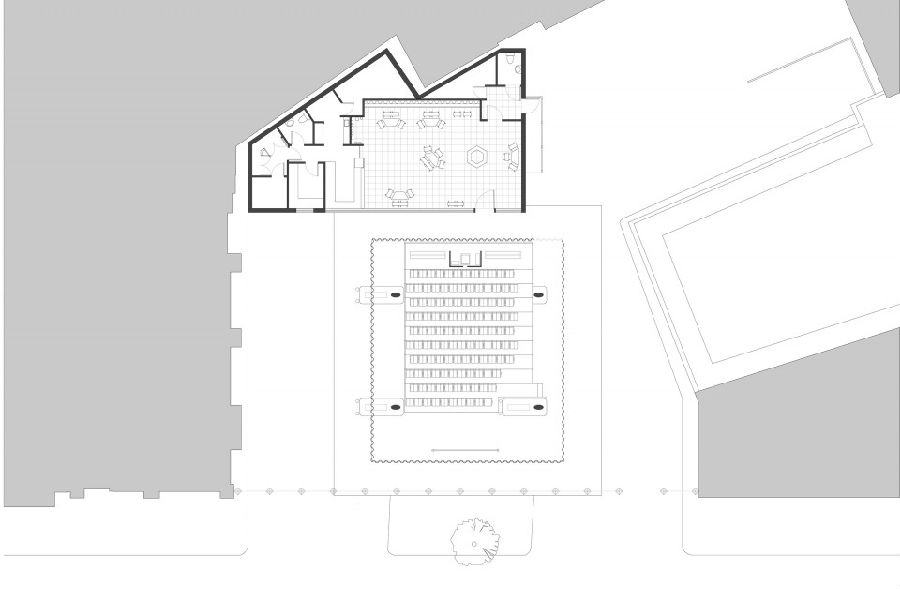
Cineroleum是一个自我发起的项目,将Clerkenwell路上的一家加油站改造成一家电影院。在英国有4000个废弃的加油站,该项目是关于如何对它们加以再利用的一次试验。

Cineroleum是一次基于图片上黄金时代那些腐朽的室内装饰与丰富意向的即兴创作。设计师通过便宜的、回收或者捐赠得来的工业材料,在马路边再现了那个时代的经典元素。折叠椅来自于脚手架,门厅用学校废弃的塑料桌椅装点而成。剧场的围合结构是长约3公里手工缝制的屋面防水膜。

Cineroleum手工制造的痕迹非常明显,一只100人的志愿者团队,在彼此学习、不断试验的过程中,将其搭建起来。

与城外的影院不同,Cineroleum主义营造观看电影时的体验,从爆米花机到老加油站商店里的酒吧,再到经典的电影节目。

同欧洲最繁忙的单行道一帘之隔,却创造了两个世界,帘内人沉浸于电影的幻想,帘外的人可以观赏这个街道旁的奇妙景观。电影结束,幕帘升起,观众走出想象的电影世界进入日常生活的剧场。

同欧洲最繁忙的单行道一帘之隔,却创造了两个世界,帘内人沉浸于电影的幻想,帘外的人可以观赏这个街道旁的奇妙景观。电影结束,幕帘升起,观众走出想象的电影世界进入日常生活的剧场。

好设计网  www.haoooo.cn      欢迎投稿:infohaoooo@163.com

好设计网  www.haoooo.cn
欢迎投稿:infohaoooo@163.com