韩国庆州W住宅,携取韩屋屋檐的精髓
位于韩国庆州的这座家庭住宅由一系列管带状的厚混凝土带围合而成,为整座建筑带来了奇妙的光影效果。


这座W住宅由韩国建筑事务所ODE Architects的建筑师Jaebok Choi设计完成,总共有两层高,面积为298平方米。建筑造型与介于城市和山川之间的环境相呼应。它将曲线、直线和带有质感的表面汇聚在一起,并将一系列材料,包括混凝土、石材、砖和木材糅合于设计之中。


一条条的混凝土带是建筑的最突出特征,它环绕房子的四面铺设,十分显眼。ODE Architects将这种形式视作是对韩国传统曲线屋顶的当代重释,典型的韩屋屋顶以瓦片铺就,在韩国随处可见。


“本次项目中的屋檐出挑比例与韩屋的屋檐十分相似,”Choi说道。“形态自由的屋檐‘轻盈而优雅地拥抱’周围的山川地形,与周围环境相融合,携取韩屋屋檐的精髓,使建筑成为风景的一部分。”

管槽状的表面是为了模仿韩屋住宅上凹屋顶瓦片的比例。“凹面瓦片和纹理投射出光影的运动轨迹,巧妙地赋予光线独特的运动轨迹和清晰的存在感,”建筑师解释道。


这组建筑从平面上看相当长而具有线性感,其中还有几个房间延伸到南侧和北侧的外部。两个楼层上的外部均设有室外露台。“主卧室位于南花园的旁边,窗户朝南,”Choi说道。“后勤用房位于北面,为主要使用房间提供方便和独立的感觉。”


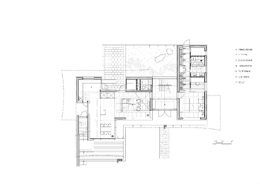
底层可容纳主要的家庭生活空间,包括有双人通高的休息室和组合式厨房和用餐区。另有一间卧室也位于这一层。楼上有三间卧室,一间额外的起居室和一个小书房。这些房间由一条长长的走廊连接成一排。许多隔墙都是用玻璃制成的,有助于光线的过滤。


“走廊是由一道长长的天花板构成,这样光线可以从两侧照射进来,既可以分隔空间,也可以与穿行长廊的人作伴。”建筑师补充道。


▲ 基地总平面

▲ 一层平面图

▲ 二层平面图


▲ 剖面图
建筑设计:ODE Architects
设计团队:Jaebok Choi, Sangsu Yu, Harim Yu
结构工程:EUN
设备安装:Seyeon engineering
承包商:KH Kim
好设计网 www.haoooo.cn 欢迎投稿:infohaoooo@163.com
好设计网 www.haoooo.cn欢迎投稿:infohaoooo@163.com
