阿根廷LRC住宅,对原始沟壑的尊重
BDB Arquitectos / 阿根廷 圣伊西德罗
2018-01-11
这座房子坐落在长21.6米的圣加西德罗沟壑中,从斜坡的底部到最高点跨度为8.5米。这个沟壑是原始海岸的象征,也是我们短暂的历史历程中赢得拉普拉塔河(Ríode la Plata)胜利留下的痕迹,因此我们认为应该尽可能少地改变它的原貌,这一点是很重要的。


保持原有的斜坡让我们能够尽量减少结构层面的变化。因而这座钢筋混凝土建筑嵌入原始的斜坡中,其占地面积将会增加,而斜坡的坡度将缩小。一部纵向的楼梯从房子的一端通往另一端,强调对原始沟壑的尊重。




房子沿着沟壑为“L”形的平面布局,在一层生成一个庭院,这个庭院使得室内全天都能获得充足的阳光。



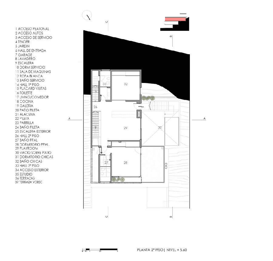
入口大厅,车库和服务区都位于一层,房子的公共部分,客厅,厨房和带游泳池的庭院都在二层,房子的私密空间,卧室和游戏室位于三层,在第四层的工作室和露台花园中,拉普拉塔河的美景尽收眼底。






▲ 总平面图

▲ 一层平面图

▲ 二层平面图

▲ 三层平面图

▲ 四层平面图



▲ 剖面图
位置:圣伊西德罗,阿根廷
面积:308.0平方米
建筑师:BDB Arquitectos
总建筑师:Ignacio Balduzzi,Carolina Bertagni,Santiago Donovan
制造商:FV,VASA,Aluar
摄影师:Santiago Donovan
项目年份:2017
好设计网 www.haoooo.cn 欢迎投稿:infohaoooo@163.com
好设计网 www.haoooo.cn欢迎投稿:infohaoooo@163.com
