小也山谷民宿·延庆,荆条子包裹之美
阿穆隆设计工作室 / 中国 北京
2019-06-17
北京周边有很多太过讲究的房子,讲究的千篇一律,讲究的太不讲究。瓷砖贴面、洋红粉蓝,总是那么出挑,这个项目原先也是这个样子。

▲ 改造前照片

▲ 改造前照片

▲ 改造前照片
钱不能花太多,所以用在山上拾的荆条子把建筑给裹起来,隐在山里,好看也遮阳。

▲ 外立面、庭院

▲ 外立面、庭院

▲ 外立面、庭院
塔房子用剩下的脚手架顺手搭在院子里,拉上遮阳的网子,日头出来的时候坐在底下,看着层峦叠嶂,美。

▲ 外立面、庭院
业主给他这个民宿起名叫“小也山谷”,但我更想叫它“野山谷”。

▲ 外立面、庭院

▲ 公共空间

▲ 公共空间

▲ 公共空间

▲ 公共空间

▲ 白色房间

▲ 黑色房间

▲ 黑色房间

▲ 木色房间

▲ 银色房间

▲ 庭院平面图

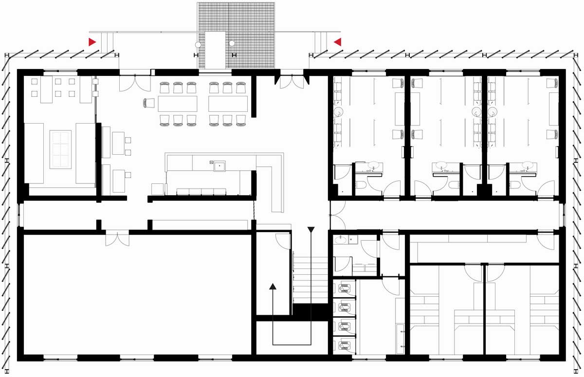
▲ 一层平面图

▲ 二层平面图
项目名称:小也山谷
项目类型:民宿,餐厅
项目地点:北京市延庆区石佛寺村
设计团队:阿穆隆设计工作室
设计师:阿穆隆 宋小有 刘宠
材料:荆条,多层板,钢,镀锌板
设计时间:2018.08-2018.09
建成时间:2018.10-2019.04
摄影:金伟琦
好设计网 www.haoooo.cn 欢迎投稿:infohaoooo@163.com
好设计网 www.haoooo.cn欢迎投稿:infohaoooo@163.com
