墨尔本Sam Sam韩式炸鸡啤酒吧,探索优雅和谦逊的感觉
项Sam Sam的室内以其干净、一体化的瓷砖的设计探索出一种优雅和谦逊的感觉,这种设计在墙壁、地板和家具周围不断流动,在空间的各个角落形成柔软的曲面。与Sam Sam的菜单相似,它的整体方案、照明功能和座位布局也为60年代的复古风格和韩国传统公共浴室的建筑提供了一种现代的方式。

该项目的目的是为经典设计创造新的转折。 这个概念融入了一个真正创新的当代时尚世界,描绘了现代韩国室内风格与西方建筑语言之间模糊的界限。在韩国建筑“现代简约室内设计”的最新潮流的推动下,连续的线条和三维几何成为室内空间的主要语言。


同时,空间概念还需要与Sam Sam的“休闲和有趣的韩国餐饮”品牌概念相结合。通过这样做,项目的整体方案给人一种公共浴室建筑的感觉,这仍然是韩国文化的一部分。然后探索将文化和传统建筑融入更现代环境的可能性。
这个小型餐厅(17平方米的用餐面积)由自助点餐亭、柜台、吧台等12个座位组成。在这个项目中,团队使用了不同类型的组成、配置和布局,例如升高主要座位区域以在紧凑的空间中创建尺寸。团队还在项目中加入了复杂性和独特性,包括公共浴室的座位风格,同时弯曲边缘以强调连续性和极简主义,增添了一种精致和独特的感觉。







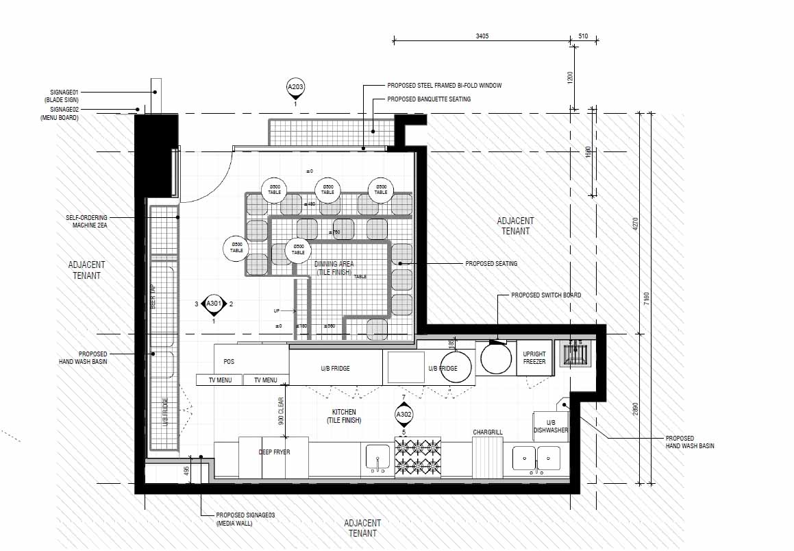
▲ 平面图
目名称:Sam Sam Korean Chicken and Beer
项目类型:餐饮空间/餐厅酒吧
项目面积:24平方米
项目位置:澳大利亚墨尔本
设计公司:Arkim
摄影:nguyen dang
完成时间:2019
好设计网 www.haoooo.cn 欢迎投稿:infohaoooo@163.com
好设计网 www.haoooo.cn欢迎投稿:infohaoooo@163.com
