上海陇上书店,改造后焕然一新
该书店前身是化工书店,位于上海市徐汇区梅陇路上,走进这里看到的是典型的新华书店的样子。书架和书以一种最朴素简单的方式排列和摆放,书架上的书是满的,书架与书架之间便自然形成让人行走的走道。人流连其间,目力所及都是书,书的数量和人们在此阅读、购书的行为构成了这个空间。
▼ 改造前

作为上海西南地区的一条东西走向的街道,梅陇路贯穿了许多个老式的居民新村。在梅陇路上,陇上书店的东面是华东理工大学校园,西面是一片长660米的杉树带。理想的书店模式被放置到这样一个场地上,为了让室外参与到室内,走在街道上的人们对这一场所有所理解,书店原本的立面被改变,重新设立的是入口的一扇门和同一立面上引入更多室外光线的一扇窗。这是在对“理想模式”被放置进来究竟需要多少光线,进行谨慎而积极的考察后做出的决定。


这个空间的形态和内容是与“书店”的名称最匹配的,是人们熟悉的,这一点被作为设计方法运用到了新书店,陇上书店的建造中。在对“采用什么形式的书架”的问题进行考察后,直线型平行排列的书架作为能给人提供最多路线选择的形式,被确定下来。和老的书店一样,书架的排布自然形成了包含人行为的通道,而在通道中活动的方向并不固定。
由一个室内去做一个室外。在陇上书店里,所有的书架采用钢板制作,同时,室外立面的幕墙结构采用了和书架一样的钢板,它使室内与室外有了对应点,当人们在街上走过,看到这一形式的立面,便能对室内产生一定的理解。二者有着显著的一致性。出于对“最基本、人们熟悉的”材料的考虑,除了钢板之外,书店里还大量使用了木头。材料是熟悉的,构造是陌生的,空间的尺寸就模糊了。在这个188平方米的空间里,容纳了2万册书、24个咖啡位,能做到这个结果就是因为对所有的构造都进行了改变。




这里,书店、咖啡馆、沙龙作为三个功能同时出现在同一空间,互相区分又交织在一起,因此,一种“拱形墙”被放置进来。较为宽敞的沙发区,和书架结构上,都采用了这一元素,尤其在体验后者时,人的行为——坐在“拱形墙”里看书,在“拱形”背面的书架前浏览书籍——成为一种有趣的考量,人和人、人和环境,产生微弱的互动。



找到支撑书架的结构是接下去需要做的。最后,当一切安排妥当,把书架与书架进行连接,便出现了“拱形”,拱形的顶和支撑书架的结构连成一片,是为一个整体。在陇上书店的建造过程中,当一个理想的书店模式已经具备:书架、“拱形墙”、支撑结构、拱,那么,把它放到梅陇路这个场地上以后,怎样让它与街道产生联系?


关注一下书店的三个“窗口”。一个是书店入口的那扇门,它是室内动线开始的地方;一个是同一立面上的窗,位于动线结束的地方,它引导了一个更低的光线进来;另外的一扇窗,能看到华理校园,窗外有一棵桂花树,这里连通的是新书店的咖啡操作区。



▲ 平面图

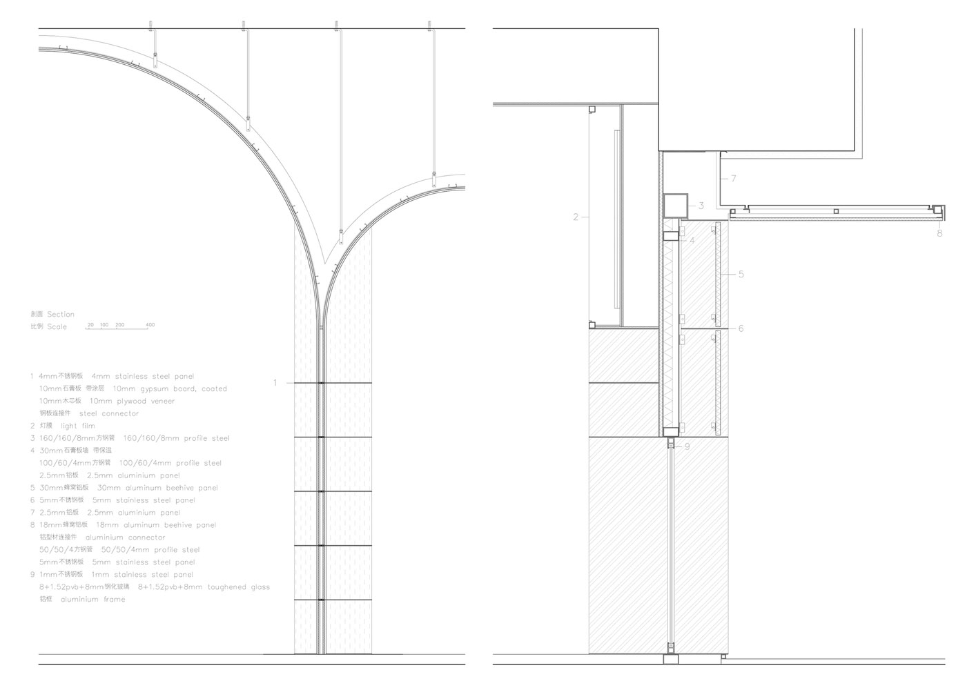
▲ 节点图
项目名称:陇上书店
项目类型:商业空间、书店设计、空间改造
项目面积:188平方米
项目地址:上海市徐汇区梅陇路142号
设计公司:米凹工作室
项目主材:地毯、钢板、乳胶漆、木材、镜面不锈钢
项目摄影:梁山
项目业主:华东理工大学出版社
好设计网 www.haoooo.cn 欢迎投稿:infohaoooo@163.com
好设计网 www.haoooo.cn欢迎投稿:infohaoooo@163.com
