北京西堤红山联合办公空间,情境化演绎“时光旅人”
“过去可能发生的和已经存在的,都指向一个始终。足音在记忆中回响,沿着我们不曾走过的那条甬道,通往我们从未打开的那扇门。”
——T·S·艾略特


设计研究的是人与空间的关系,但空间的时间性也同样值得关注。当人与人的关系趋于疏离而缺少安全感,过去的记忆线索就成为了潜在的情感共鸣触发器。
对于在都市打拼的职场人,校园是人生路上走过的重要一站。无数次交叠编织过一个个“美好”,关于未来,关于希望,也关于遗憾和错过,都化为青春的记忆和人文的情怀。


芳华的年纪,知己为伴,窗外……只消闭上眼睛,那幅画面便携带着青春独有的穿透力渗入脑海,熟悉得就如在刚刚醒来的梦中。


西堤红山联合办公项目位于北京西城区,由深圳千寻进行软装设计。设计思路来源于充满青春与梦想的校园时代,针对80,90后的感受视角,让使用者基于空间材质、光影、感知的情境演绎而化身为“时光旅人”。


情怀是每一个人心中的悸动,把记忆里的感触设计在“时光旅人”的场景中,当踏上这所空间里的长廊,视线所观的任何一个角落,都将勾勒出你曾青春洋溢的过往,和现在阳光普照的当下。


过去、现在、未来,每个时期都有着不同的心境,带着憧憬找寻如星辰一般的人生。“时光旅人”将会是在漫长的旅途中,让人沉迷的一道光。




共享式的办公空间将以自己的方式呈现出城市文化脉络的过去、现在和未来。新的空间传递出浓厚的时光底蕴,并巧妙结合充满青春活力的设计和搭配,将这里打造成面向未来世界的门户。


复式的设计,如演出的戏剧,一出方罢那方又起。这里让人感觉有趣的的地方,对于将发生的事情,旁观者没有感觉,它仅仅是对象物与主体两者间的“私事”。





稚真之气尚未经历沧桑,心智的羽翼却已渐丰,向上的生命力在这别具一格的设计里悄然绽放。当漫步在犹如时光隧道一样的长廊时,仿佛时间倒流,梦醒在刚踏入校园的那一刻。
透过窗折射进来的光,映照在一行行溢出的书本上,呈现的不止是记忆,也是印入眼帘的情怀烙印。



新+旧的空间碰撞,现在进行时和过去式的视觉冲击,创造出浓厚的情感氛围。无论是在工作还是偶尔的闲暇之际,弥漫在这空间里的气息,都将把你带入象牙塔一般的身临其境。
在木质、金属、大理石构建的几何界面中,每一种肌理、色彩,让所见并不止于静态。这是人生的过往,也是通往远方的旅途,而旅程上的风景,铸造了不同的灵魂,承载了过去和未来,在此时此刻与我们相见。











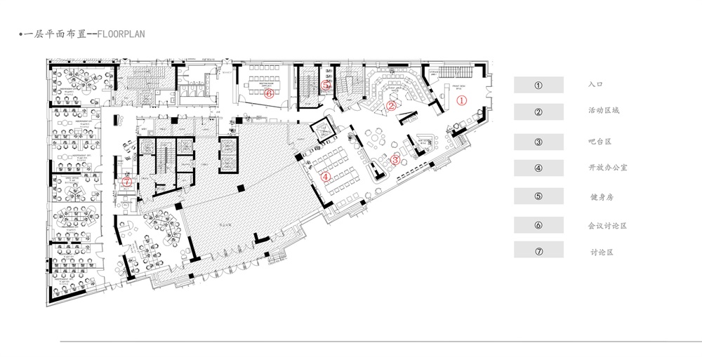
▲ 一层平面图

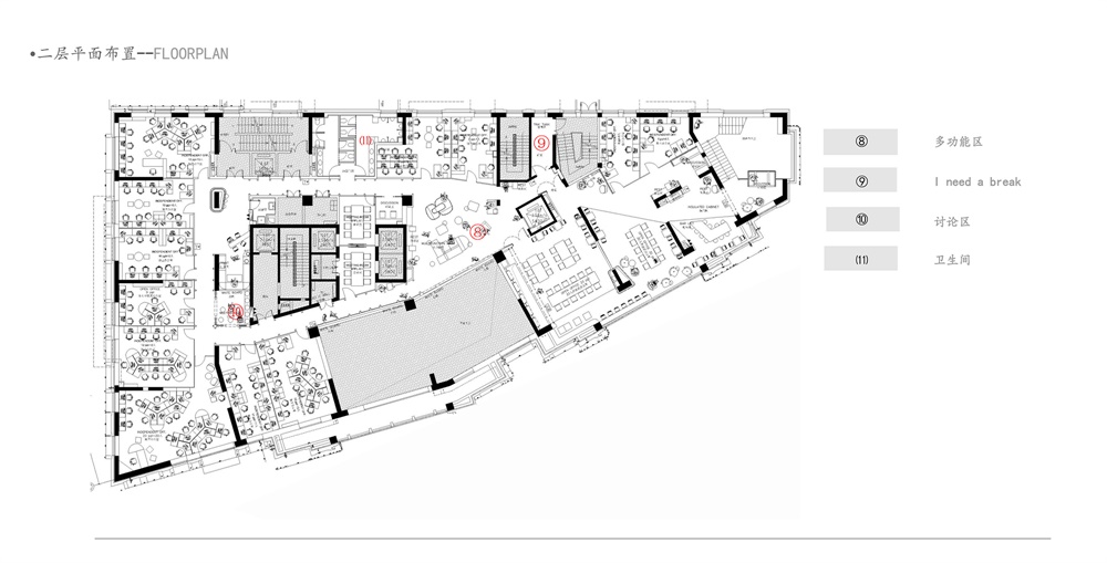
▲ 二层平面图
项目名称:西堤红山联合办公项目
项目性质:共享办公室
设计面积:1610㎡
项目地址:北京 北京市 西城区 广安门外大街305号
软装设计:深圳市千寻装饰工程有限公司,深圳千寻软装艺术设计有限公司
软装团队:李剪梅,后柯青,刘宇欣
室内设计:翡冷翠阿利亚设计咨询(北京)有限公司(area-17)
主要材料: 木、金属、大理石
业主单位:华润置地(北京)股份有限公司
北京华润设计中心:宋涛、关磊
摄影:ingallery
完工日期:2019年3月
好设计网 www.haoooo.cn 欢迎投稿:infohaoooo@163.com
好设计网 www.haoooo.cn欢迎投稿:infohaoooo@163.com
