葡萄牙 NVC 住宅,设计让房子获得新生
使一栋因上世纪90年代中期的一场大火而毁坏且屋顶坍塌的建筑获得新生是设计的起点。独特的位置,过大的体量,被建在高密度车流道路之间的一块无人区,场地四周是高低不平的荒草地,商业区,稠密而杂乱无章的住宅聚集区,毗邻南部的大西洋海岸,而另一栋坐落于东部的山顶,西部是城市区。因此,干预的力度是非常大的。


使一栋因上世纪90年代中期的一场大火而毁坏且屋顶坍塌的建筑获得新生是设计的起点。独特的位置,过大的体量,被建在高密度车流道路之间的一块无人区,场地四周是高低不平的荒草地,商业区,稠密而杂乱无章的住宅聚集区,毗邻南部的大西洋海岸,而另一栋坐落于东部的山顶,西部是城市区。因此,干预的力度是非常大的。


第一步是确认房子的结构得到仔细地评估和加强。从内外考虑,在这样一个独特的地方,尽可能地保护房子的隐私。项目考虑了周围的景观视野以及与大海的直接联系,山脉和城市作为一个整体策略被重新考虑,增加外部门窗和面向东侧的垂直露台,其中一个露台被置于屋顶朝向西侧以建立与蓬塔德尔加达市的联系。为了调整这个14米宽、分层两层高大空间、几乎是四边形的体量,我们使用了连续平面上的四坡屋顶,将屋顶结束于墙体处。因此使房子焕然一新。









在房子的关键部位使用日本雪松木是为了服务于特定的目的,即通过氧化作用慢慢变成微黄色调来体现时间的流逝,与采用的人工隔离体系形成对比,同时消解纯白色体量的抽象感。房子外表几乎反光的白色,从场地中凸显出来,在不公开自身空间的同时窥探着现实。


▲ 一层平面图

▲ 二层平面图

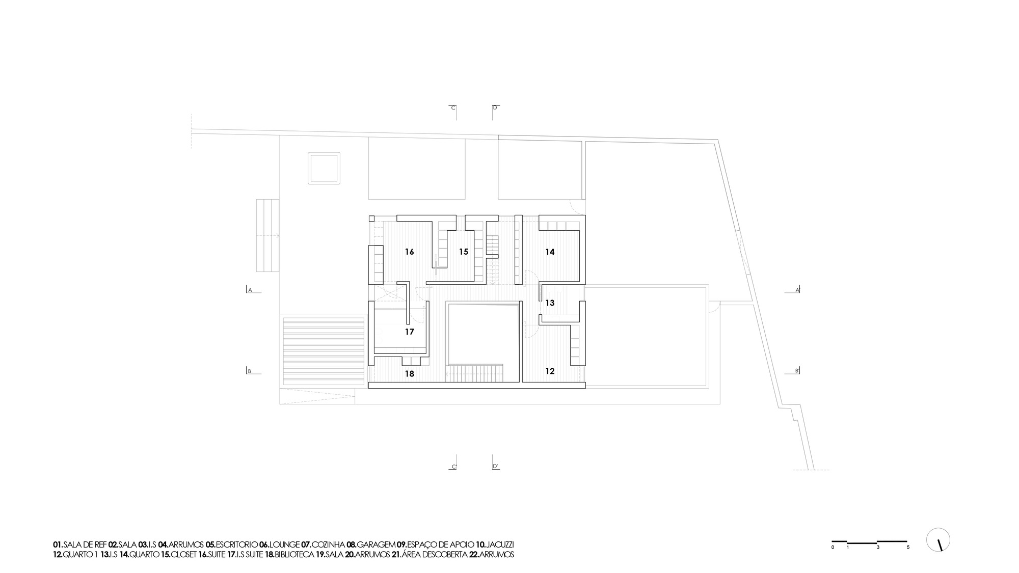
▲ 三层平面图

▲ 屋顶平面图
项目类型:独立住宅
项目面积:295.0 m2
项目地址:蓬塔德尔加达,葡萄牙
建筑设计:Salworks
主创建筑师:Rui Sabino de Sousa, Gonçalo Cordeiro
工程师:RPM, construções
好设计网 www.haoooo.cn 欢迎投稿:infohaoooo@163.com
好设计网 www.haoooo.cn欢迎投稿:infohaoooo@163.com
