杭州星耀中心公寓,诠释都市生活本真
钱塘繁盛,市井昌荣,一座城市彰显的明耀光彩,是城市里的每一户家庭倾心造就的,而这座城市,又给了每个家庭予以安生享乐的欣然姿态。钱江南岸的这套星耀城公寓,以生活为轴心,城市为符号,打造出现代、雅致、温暖的居所空间,让家与城市,相辅相成。
走进入户玄关,锯齿木饰面柜体低调时尚,正面鱼肚白大理石墙体带来自然的清润感。整体简约的现代主义风格令人安怡,沉稳温丽的色调下,线条利落有致,格局清晰,结构性强,空间质感不言而喻。




云丝细腻、调性亲和的宝格丽棕大理石地面从玄关延伸至客厅和过道,稳重内敛,柔润的光泽使区域更为通透明亮。客厅与餐厅融为一体,增强了家庭成员的互动,动线趋于多元。





占据整体居所视觉中要的,是以鱼肚白大理石构成的客厅背景墙,线条明晰,行云流水,宛若破晓山涧,都市中突显的自然气息。一旁的木质条纹墙体,增强了整体构成,将自然元素与都市线条和谐过度。




客厅后侧是厨房,格挡是采用深色玻璃制作而成的推拉门,内部整体为白色柜面,墙体呼应客厅背景墙,以爵士白大理石为装饰,优雅温厚,细节充盈。



客厅另一侧以都市建筑为意象,构成跃层空间。大片深棕色落地玻璃,使整体宛如生长在室内的建造物,结构强烈,与空间有机结合。一层是书房,内部以白色条纹墙面为主,形式简约的展示柜别具一格。



全局独具一格之处,便是位于二层的多功能夹层区。从与玄关一墙之隔的楼梯上行,空间满足了各类休闲功能,儿童活动区位于一侧,以城市楼宇的抽象形体为元素,使夹层区更为活跃烂漫,也迎合了整体城市主题。



公共卫生间与洗衣房在走道一侧。走道尽头是主卧区域,隐私度较高。



木质地板和皮革包边墙面彰显居室的华贵,而安稳沉静的色调为这种华丽敷上一层低调的肌理。墙体以结构立面斜角造型向中间递进,增强了主卧的视觉。衣帽间在深色玻璃后方,浴室位于另一侧,靠近阳台的区域设有浴缸,灰褐色大理石与客厅空间相得益彰。




儿童房与主卧一墙之隔,蓝灰色调含蓄温和,简洁的布局使人舒适自在。


通过走道和客厅,客卧在房屋的另一端。墙面层叠的造型令人耳目一新,与主卧立面遥相应和,独立的卫生间与衣帽间为客卧的不同使用者提供了贴心的私人起居。


居所与城市密不可分,每一户家庭,都是点亮这座城市的闪耀星光。星耀城这套寓所,在点点星光中,以自身独有的设计语言,诠释了都市生活的本真。
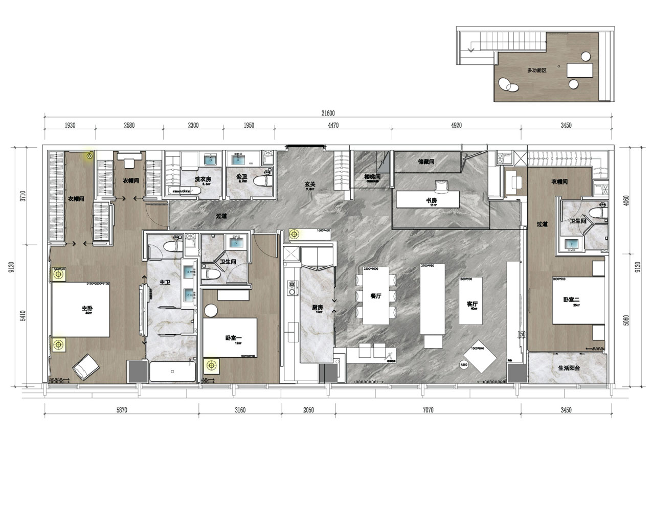
▼ 平面图

项目名称:星耀中心大平层中间套户型
室内面积:210㎡
项目地点:中国浙江省杭州市滨江区
室内设计:GFD杭州广飞室内设计事务所
室内设计协调:叶飞
室内设计主笔:刘骅莹
室内设计协同:金芳芳、李柯立
软装设计主笔:何嘉柠
软装设计协同:沈丹丹
软装执行单位:杭州千渡家居设计有限公司
主要材料:银色梦幻、鱼肚白、范思哲黑、喜马拉雅、宝格丽棕、白金沙、爵士白、发纹黑钛、意大利涂料、锯齿木饰面
空间摄影 :余几美学
项目撰稿:汤子
项目业主:兴耀房产
竣工时间:2019.12
好设计网 www.haoooo.cn 欢迎投稿:infohaoooo@163.com
好设计网 www.haoooo.cn欢迎投稿:infohaoooo@163.com
